AXIOS
Social sustainable housing in Northen Greece
Year: 2010
Competition
What stood out, when we analysed the area, were: the geographical position of the plot in the settlement of Kymines, located between the Axios and Loudias rivers; how flat the landscape was; the existence of a marine habitat with rich and varied flora and fauna; and the determination of the inhabitants to uphold the virtues of the area and to proceed with environmentally-compatible management.
For our proposal, we chose to utilise the residential model used throughout the area, i.e. independent single- and two-storey residential units, both in order to facilitate social integration for incoming residents, as well as to achieve maximum possible independence in the management of the entire complex.
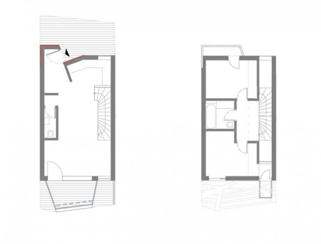
The principal composition element was environmentally-conscious design of the houses individually and the complex overall. Our concept priority was to ensure the residences were oriented correctly for the local climatological features. The creation of an external shell that changes according to the seasons and the requirements of the residents provides a variable facade, which enriches the urban landscape. The hierarchy and distinction of private and public space ensures security and unambiguous operation of the complex.
The settlement was treated as a new ecosystem, which adapts to its environment and meets the prerequisites for contiguity with the rest of the settlement: creating internal axes linking points of the neighbourhood – but also maintains its own life and identity, providing an opportunity for its inhabitants to socialise and evolve, with spaces for public use and community activities.
The complex is made up of a line of 31 independent residences in line, parallel towards the south, which are divided into three smaller groups / neighbourhoods. The houses were deliberately situated with unequal distances between them, in order to create spaces that differ qualitatively, in use, and visually. The minimum distance between houses along the north – south axis is such that the slanted winter sunlight warms the entire surface of the southern aspect.
The residences have entrances along the north side. Thus the common pathway is always located towards the closed side of the buildings, while the living rooms and the gardens are located on the south side of the buildings.

